Objekt 89 von 92
Nächstes Objekt
Vorheriges Objekt
Zurück zur Übersicht
code
Zurück zur Übersicht
Nächstes Objekt
Vorheriges Objekt
Zurück zur ÜbersichtWilburgstetten: Raumwunder: Unser Generationenhaus mit Einliegerwohnung
Objekt-Nr.: FD-AN24102025-03
Schnellkontakt
Optionen
Optionen
Basisinformationen
Adresse:
91634 Wilburgstetten
Ansbach
Bayern
Ansbach
Bayern
Gebiet:
Wohngebiet
Preis:
1.485.000 €
Wohnfläche ca.:
225 m²
Grundstück ca.:
648 m²
Zimmeranzahl:
6
Weitere Informationen
Weitere Informationen
Haustyp:
Einfamilienhaus
Etagenanzahl:
1
Bad:
Dusche, Wanne, Fenster
Anzahl Schlafzimmer:
4
Anzahl Badezimmer:
2
Einliegerwohnung:
ja
Gäste-WC:
ja
Keller:
nein
Qualität der Ausstattung:
gehoben
Baujahr:
2026
Bauphase:
Haus in Planung (projektiert)
Verfügbar ab:
2026
Bodenbelag:
Fertigparkett, Fliesen, Laminat, Teppichboden
Zustand:
Haus in Planung (projektiert)
Befeuerungsart:
Wärmepumpe
Energietyp:
KFW55
Beschreibung
Beschreibung
Objektbeschreibung:
Bei dem hier abgebildeten Haus handelt es sich um ein projektiertes Haus bei welchem Sie selbstverständlich Ihre individuellen Wünsche und Bedürfnisse in die Planung mit einfließen lassen können.
So können der Grundriss und der Haustyp im Rahmen der Bauvorschriften frei gestaltet werden und der Lieferumfang individuell auf Ihre Wünsche angepasst werden.
Der Angebotspreis gilt für dieses OKAL Haus (gem. Bau- und Leistungsbeschreibung). inkl. fast fertigen Innenausbau (Malervorbereitet) und dem Kaufpreis für Ihr Grundstück. Das Grundstücksangebot (Verkauf/Vermittlung) erfolgt direkt vom Eigentümer oder über einen kooperierenden Makler gem. §34cGewO. Baunebenkosten wie z.B. Erdarbeiten, Außenanlagen, Anschlusskosten Versorger etc. sind im Hauspreis nicht enthalten.
KURZE BAUZEITEN und FESTPREISGARANTIE machen die Kosten für jedermann überschaubar.
Das Satteldachhaus mit XL-Grundriss bietet vor allem eins: Freiraum! An das geräumige Haupthaus ist parterre die separate Zwei-Zimmer-Wohnung angegliedert. Beide Wohneinheiten im Erdgeschoss wirken dank bodentiefer Fenster und Schiebetüren einladend groß und hell.
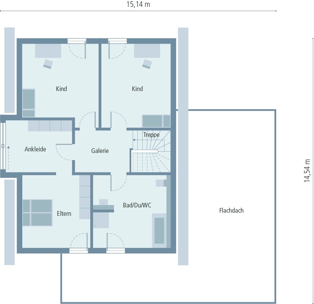
In der Eltern-Suite im Dachgeschoss verbindet die Ankleide Schlafraum und Badezimmer. Kinder oder Gäste finden hier ebenfalls ihren Platz. Und auch auf Büro und zusätzliches Duschbad muss nicht verzichtet werden. So geht wohnen!
So können der Grundriss und der Haustyp im Rahmen der Bauvorschriften frei gestaltet werden und der Lieferumfang individuell auf Ihre Wünsche angepasst werden.
Der Angebotspreis gilt für dieses OKAL Haus (gem. Bau- und Leistungsbeschreibung). inkl. fast fertigen Innenausbau (Malervorbereitet) und dem Kaufpreis für Ihr Grundstück. Das Grundstücksangebot (Verkauf/Vermittlung) erfolgt direkt vom Eigentümer oder über einen kooperierenden Makler gem. §34cGewO. Baunebenkosten wie z.B. Erdarbeiten, Außenanlagen, Anschlusskosten Versorger etc. sind im Hauspreis nicht enthalten.
KURZE BAUZEITEN und FESTPREISGARANTIE machen die Kosten für jedermann überschaubar.
Das Satteldachhaus mit XL-Grundriss bietet vor allem eins: Freiraum! An das geräumige Haupthaus ist parterre die separate Zwei-Zimmer-Wohnung angegliedert. Beide Wohneinheiten im Erdgeschoss wirken dank bodentiefer Fenster und Schiebetüren einladend groß und hell.
In der Eltern-Suite im Dachgeschoss verbindet die Ankleide Schlafraum und Badezimmer. Kinder oder Gäste finden hier ebenfalls ihren Platz. Und auch auf Büro und zusätzliches Duschbad muss nicht verzichtet werden. So geht wohnen!
Ausstattung:
Das angebotene Haus wird fast fertig ausgebaut, in der Stufe Malervorbereitet geliefert.
Lediglich der Kauf und die Anbringung der Maler-/und Tapeziermaterialien sowie die Bodenbeläge erfolgen in Eigenleistung. Auf Wunsch können wir Ihnen für Ihr Haus auch die Ausbaustufe Einzugsfertig inkl. Bauendreinigung anbieten.
Alle OKAL Häuser übertreffen die Vorgabe der Energieeinsparverordnung für Neubauten. Und jedes unserer Häuser hat bereits eine umfassende Ausstattung, in der schon viele Extras im Hauspreis enthalten sind.
• Architektenleistung inkl. Bauantragserstellung, Statik-/ und Wärmeschutzberechnung
• Bodengutachten
• Bodenplatte inkl. Sockeldämmung
• 2,80 m Raumhöhe
• Innentüren inkl. Zargen
• Sanitärobjekte
• Frischluftwärmetechnik PROXON
• Dämm- und Beplankungspaket
• Heizungsanlage und Elektropak
• Haustechnik inkl. Rohrleistungen
• Echtholztreppe
• Bauherren Sicherheitspaket
• 3-fach verglaste Fenster
• Elektrische ALUMINIUM- Rollläden
• Blower-Door-Test
• KfW-Effizienzhaus 55
• Nachweislich gesundes Bauen: TÜV-Siegel "Toxproof"
• Bauendreinigung vor Hausübergabe (nur bei Ausbaustufe Einzugsfertig)
Die auf den Bildern gezeigten Inneneinrichtungen sind Beispiele. Die Innenausstattung legen Sie individuell in der Bemusterung (Bemusterungszentrum) fest.
Faire Zahlungsbedingungen: KEINE Anzahlungen - Zahlen erst nach erbrachter Leistung!
Lediglich der Kauf und die Anbringung der Maler-/und Tapeziermaterialien sowie die Bodenbeläge erfolgen in Eigenleistung. Auf Wunsch können wir Ihnen für Ihr Haus auch die Ausbaustufe Einzugsfertig inkl. Bauendreinigung anbieten.
Alle OKAL Häuser übertreffen die Vorgabe der Energieeinsparverordnung für Neubauten. Und jedes unserer Häuser hat bereits eine umfassende Ausstattung, in der schon viele Extras im Hauspreis enthalten sind.
• Architektenleistung inkl. Bauantragserstellung, Statik-/ und Wärmeschutzberechnung
• Bodengutachten
• Bodenplatte inkl. Sockeldämmung
• 2,80 m Raumhöhe
• Innentüren inkl. Zargen
• Sanitärobjekte
• Frischluftwärmetechnik PROXON
• Dämm- und Beplankungspaket
• Heizungsanlage und Elektropak
• Haustechnik inkl. Rohrleistungen
• Echtholztreppe
• Bauherren Sicherheitspaket
• 3-fach verglaste Fenster
• Elektrische ALUMINIUM- Rollläden
• Blower-Door-Test
• KfW-Effizienzhaus 55
• Nachweislich gesundes Bauen: TÜV-Siegel "Toxproof"
• Bauendreinigung vor Hausübergabe (nur bei Ausbaustufe Einzugsfertig)
Die auf den Bildern gezeigten Inneneinrichtungen sind Beispiele. Die Innenausstattung legen Sie individuell in der Bemusterung (Bemusterungszentrum) fest.
Faire Zahlungsbedingungen: KEINE Anzahlungen - Zahlen erst nach erbrachter Leistung!
Lage:
Nähere Informationen erhalten Sie per Anfrage bzw. in einem unverbindlichen Beratungsgespräch.
Das angegebene Grundstück stellt lediglich eine Möglichkeit für den Bauherren dar. Es kann separat von unseren Kunden beim Inhaber/Verwalter erworben werden.
Zwischenverkauf ist jedoch jederzeit möglich.
Der zu erwartende Grundstückspreis ist im oben aufgeführten Gesamtpreis/Kaufpreis bereits eingerechnet.
Es fallen lediglich noch die üblichen Kaufnebenkosten für das Grundstück an.
Falls Sie schon ein passendes Grundstück reserviert oder erworben haben, so kalkuliere ich auf Ihr Grundstück das von Ihnen und uns geplante individuelle Traumhaus.
Das angegebene Grundstück stellt lediglich eine Möglichkeit für den Bauherren dar. Es kann separat von unseren Kunden beim Inhaber/Verwalter erworben werden.
Zwischenverkauf ist jedoch jederzeit möglich.
Der zu erwartende Grundstückspreis ist im oben aufgeführten Gesamtpreis/Kaufpreis bereits eingerechnet.
Es fallen lediglich noch die üblichen Kaufnebenkosten für das Grundstück an.
Falls Sie schon ein passendes Grundstück reserviert oder erworben haben, so kalkuliere ich auf Ihr Grundstück das von Ihnen und uns geplante individuelle Traumhaus.
Sonstiges:
Die Baunebenkosten, wie zum Beispiel Grunderwerbskosten, Notar, Hausanschlüsse, behördliche Gebühren oder Finanzierungskosten sind nicht im Gesamtpreis enthalten.
Die Abbildungen zeigen zum Teil Sonderausstattungen. Flächenangaben nach DIN 277.
Änderungen des Preises oder der Ausstattungen sowie Irrtümer oder Zwischenverkauf sind vorbehalten.
Es gilt die jeweilige Baubeschreibung und Preisliste des Anbieters. Für Angaben von Dritten, Eigentümern und/oder Behörden kann keine Gewähr übernommen werden.
Hinweis zu den gesetzlichen Pflichtangaben gemäß der EnEV 2014: Das hier angebotene Haus ist ein Neubauprojekt und es liegt daher noch kein Energieausweis vor. Dieser wird Ihnen spätestens im Rahmen der Erstellung des Objektes ausgehändigt
Die Abbildungen zeigen zum Teil Sonderausstattungen. Flächenangaben nach DIN 277.
Änderungen des Preises oder der Ausstattungen sowie Irrtümer oder Zwischenverkauf sind vorbehalten.
Es gilt die jeweilige Baubeschreibung und Preisliste des Anbieters. Für Angaben von Dritten, Eigentümern und/oder Behörden kann keine Gewähr übernommen werden.
Hinweis zu den gesetzlichen Pflichtangaben gemäß der EnEV 2014: Das hier angebotene Haus ist ein Neubauprojekt und es liegt daher noch kein Energieausweis vor. Dieser wird Ihnen spätestens im Rahmen der Erstellung des Objektes ausgehändigt
Anmerkung:
Die von uns gemachten Informationen beruhen auf Angaben des Verkäufers bzw. der Verkäuferin. Für die Richtigkeit und Vollständigkeit der Angaben kann keine Gewähr bzw. Haftung übernommen werden. Ein Zwischenverkauf und Irrtümer sind vorbehalten.
AGB:
Wir weisen auf unsere Allgemeinen Geschäftsbedingungen hin. Durch weitere Inanspruchnahme unserer Leistungen erklären Sie die Kenntnis und Ihr Einverständnis.
AUF WUNSCH empfehlen wir Ihnen eine kostenfreie Finanzierungsberatung mit Sonderkonditionen von unseren hauseigenen Finanzierungsexperten an.
Ihr Ansprechpartner
Zurück zur Übersicht













































